Unitarian Universalist Congregation at Shelter Rock
Manhasset, NY
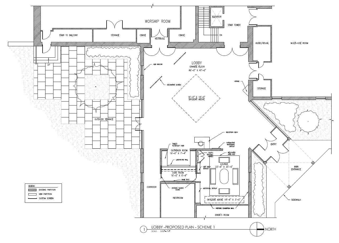
Unitarian Universalist Congregation at Shelter Rock is a landscaped campus providing space for worship, education, social action, and congregational community events. Li · Saltzman Architects was asked by the congregation to develop designs to improve entry sequence, circulation and sustainability and to provide additional areas for exhibits and events. Respecting the architectural integrity of the 1992 Edward Larrabee Barnes building, Li · Saltzman Architects redesigned the sequence from the lobby to the Worship Space to improve the transition from the everyday to the sacred and spiritual. LSA defined areas for exhibition space to highlight seminal events in the history of the congregation, including images, narratives, and artifacts.
The proposed design utilizes natural and energy-efficient lighting and sustainable materials; wayfinding for the complex of buildings; and integration of art, reception, and seating areas. A flexible indoor/outdoor event space and an amphitheater integrated with the natural slope of the surrounding meadow is envisioned for the future.
